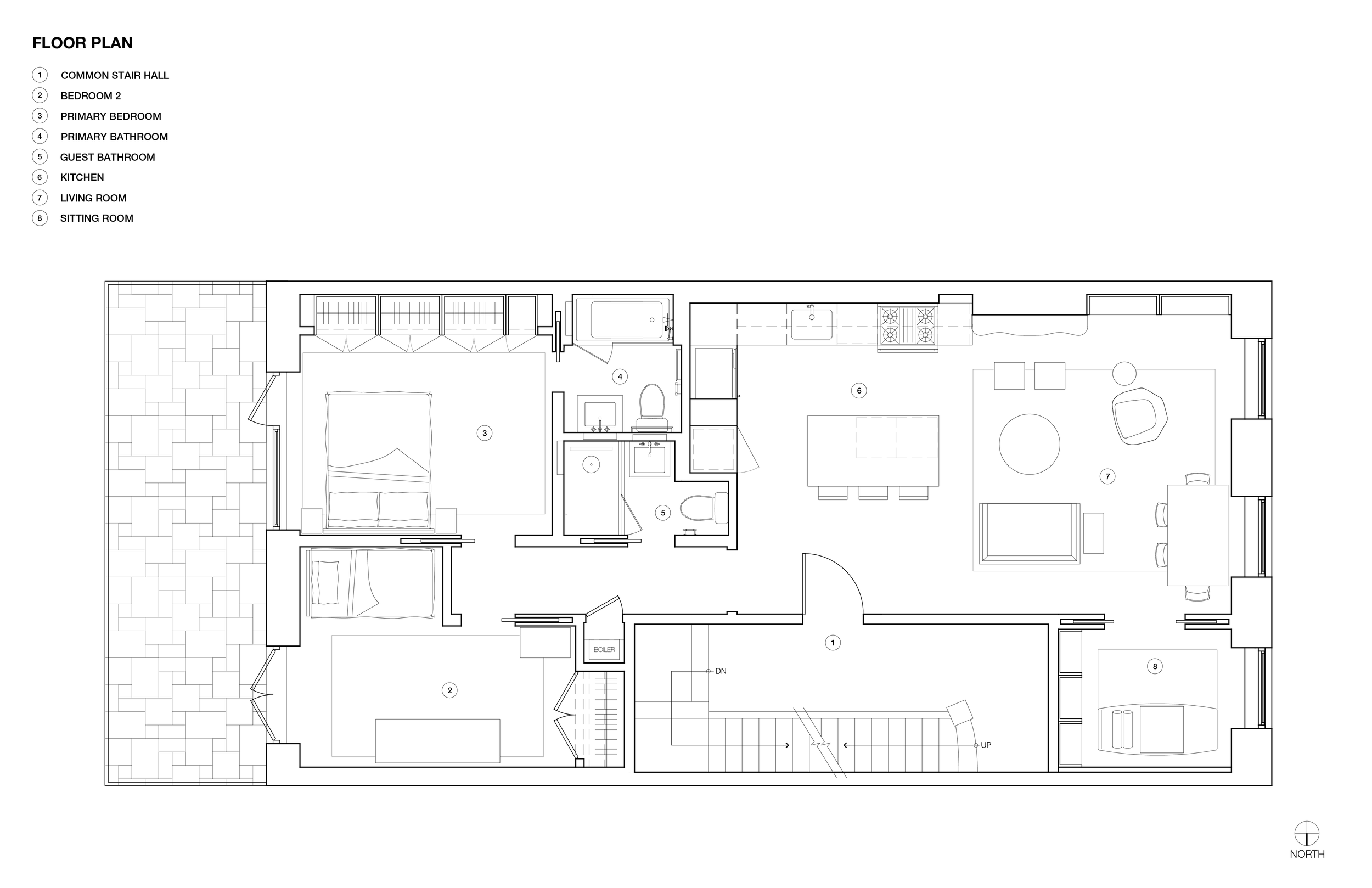
Brooklyn Heights Co-op RenovationLocation: Brooklyn, NYStatus: Construction 2025Sq. ft.: 1,100 View fullsize View fullsize View fullsize View fullsize View fullsize View fullsize View fullsize