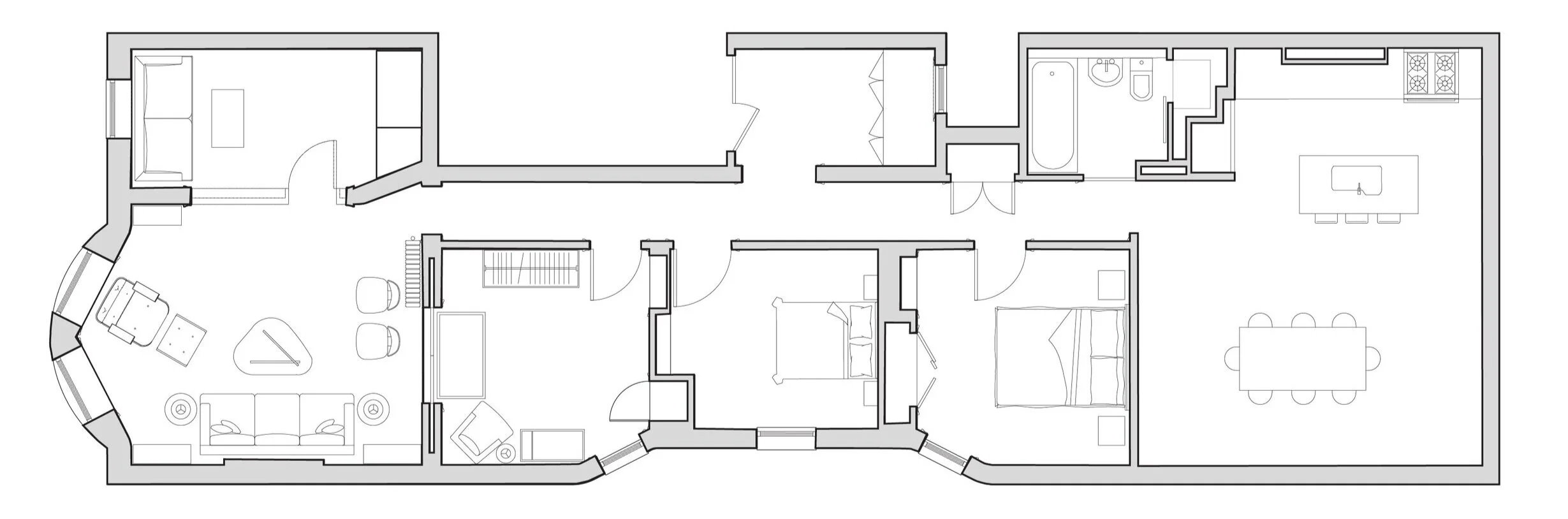
Park Slope Apartment RenovationLocation: Brooklyn, NYStatus: CompletedSq. ft.: 1,550 View fullsize View fullsize View fullsize View fullsize